
Team - Bailey Homes and Construction

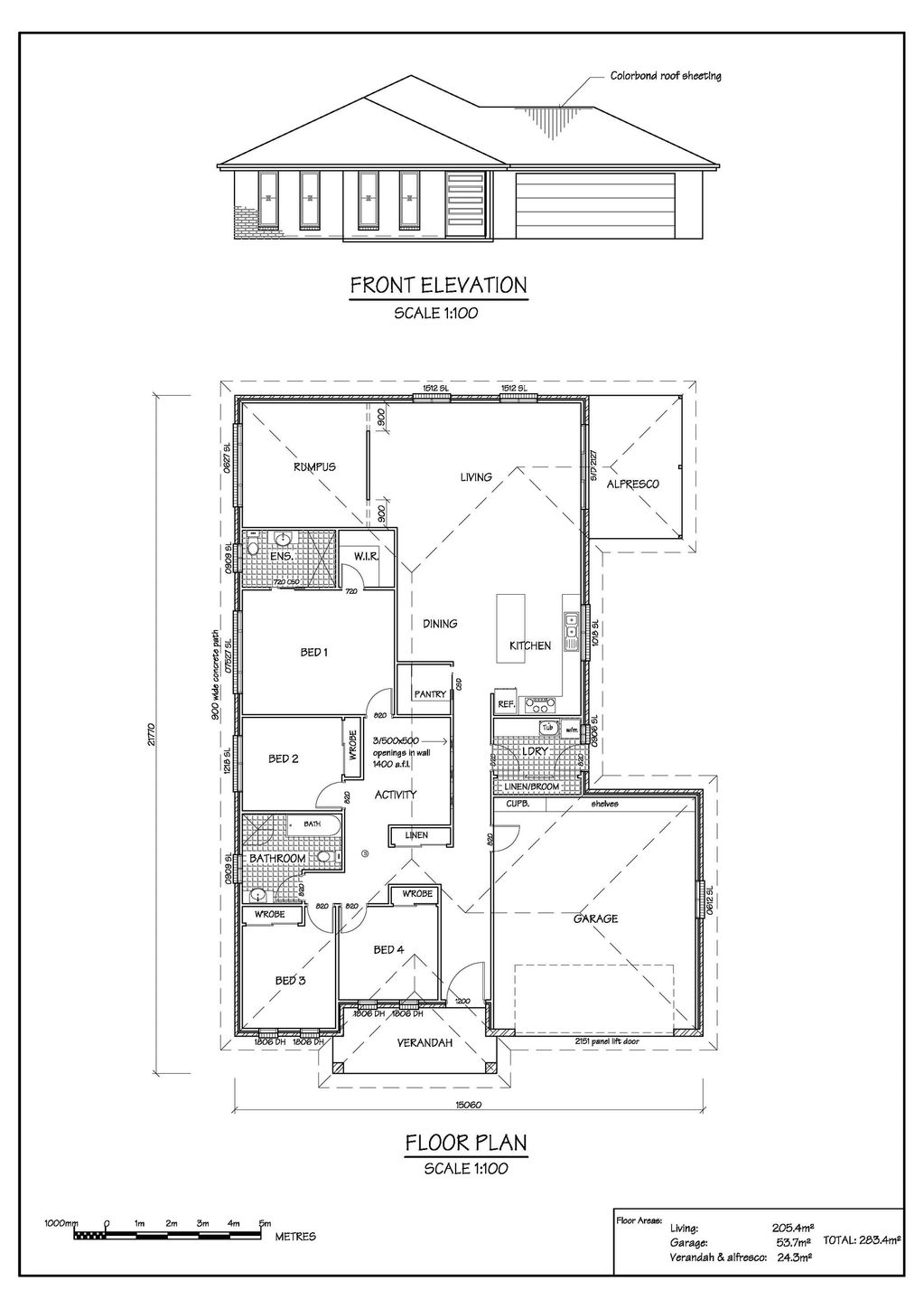
At Bailey Homes & Construction, every home begins with a meticulously designed 2D floor plan, forming the structural foundation of refined NSW living. From concept sketches to build-ready drawings, we balance elegance with functionality, ensuring compliance, feasibility and structural integrity—transforming your vision into a timeless, engineered home.




















At Bailey Homes & Construction, every home starts with a carefully planned 2D floor layout — the backbone of quality NSW living. From early sketches through to build-ready drawings, we combine smart design with structural integrity, ensuring compliance, practicality and a seamless path to construction.
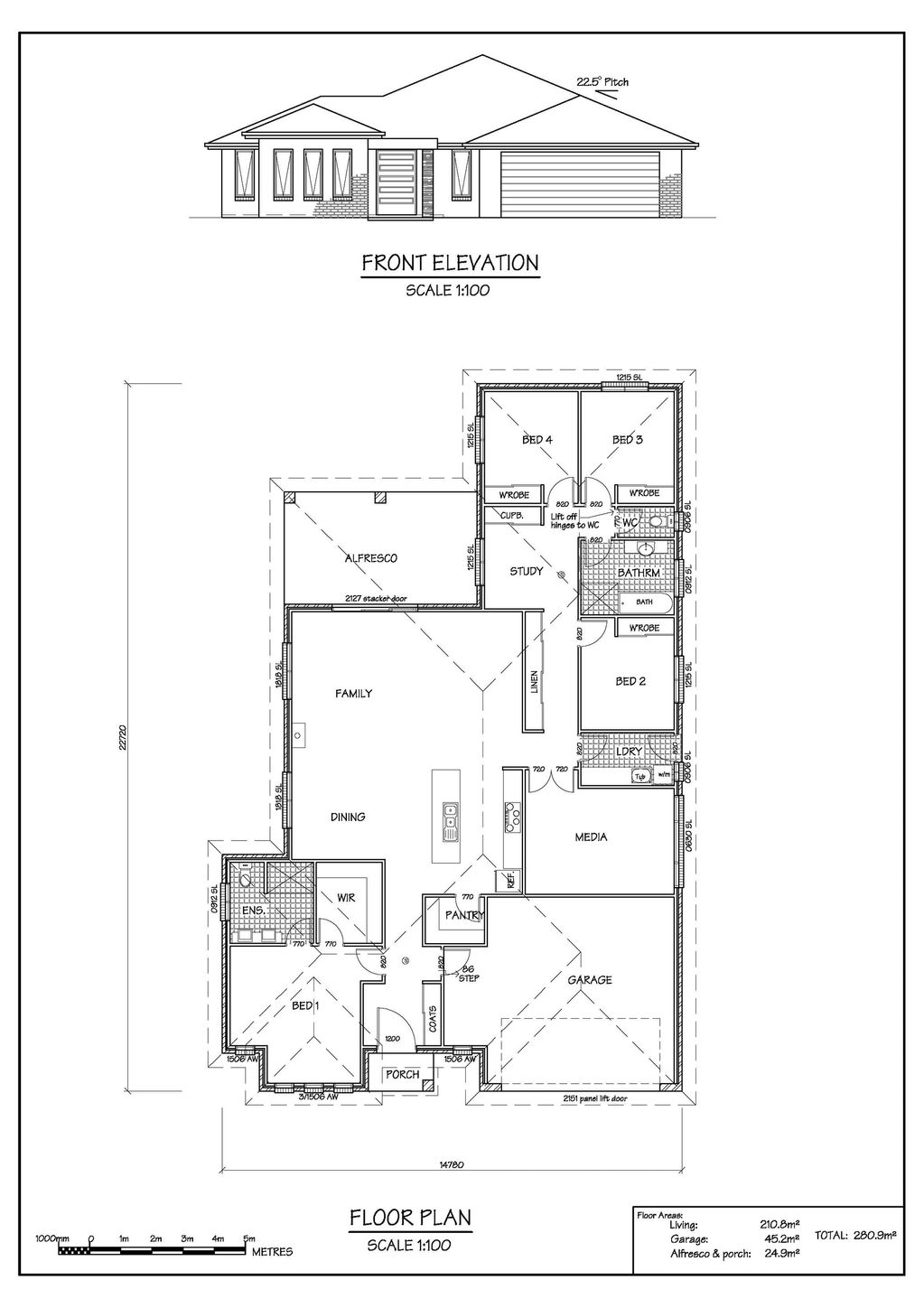
Our premium 2D house plans strike the right balance between architectural style and everyday functionality — evolving from refined concepts into modern, engineered homes built for real family life and long-term value.

















At Bailey Homes & Construction, every custom home in NSW begins with a strategically developed 2D floor plan — the structural framework behind quality residential construction. From initial concept sketches to fully detailed, build-ready architectural drawings, we integrate intelligent spatial planning with engineering precision to ensure compliance, durability and construction efficiency.
Our premium 2D house plans are carefully designed to balance modern architectural aesthetics with everyday functionality. Supported by realistic 3D rendered façade visuals, clients gain a clear understanding of scale, form and street presence before construction begins — delivering confidence, clarity and long-term property value.















Every successful NSW home build starts with a strong foundation — and that foundation is a well-considered 2D floor layout. At Bailey Homes & Construction, our in-house drafting process transforms early sketches into compliant, build-ready house plans that prioritise flow, zoning, storage and structural integrity.
We combine architectural design expertise with practical family living solutions, ensuring each floor plan works beautifully on paper and performs seamlessly in real life. Detailed 3D rendered façade images further enhance the journey, allowing you to visualise materials, rooflines and modern street appeal before ground is even broken.


Bailey Homes & Construction specialises in precision-crafted 2D house plans for modern NSW residential builds. Every project begins with a carefully engineered floor layout designed to meet Australian building standards, maximise site efficiency and deliver functional living spaces tailored to real families.
From concept drafting and zoning strategy to fully dimensioned construction drawings, our process ensures compliance, feasibility and structural alignment. High-quality 3D rendered exterior visuals complement our architectural plans, providing accurate façade representation and enhancing pre-construction decision-making — reducing uncertainty and improving project outcomes.


At Bailey Homes & Construction, we believe exceptional homes are built twice — first in 2D, then in reality. Our expertly developed floor plans form the backbone of quality NSW homes, combining smart spatial planning, modern architectural design and construction-ready documentation.
Each layout evolves from early sketches into refined, engineered house plans that prioritise lifestyle, structural integrity and long-term performance. Complemented by realistic 3D rendered façade images, our clients experience a complete visual and technical understanding of their future home — ensuring a seamless transition from design to construction.



















© 2025 Bailey Homes & Construction | All Rights Reserved
Website handcrafted in Australia by BoldSphere.au
“Crafting Bespoke Homes for a Lifetime of Luxury”
Ready to begin your custom home journey? Let’s transform your vision into reality.
📞 Call Jay: +61 421 575 424
Email: baileyhomes@outlook.com
By continuing to use this website, you consent to the use of cookies in accordance with our Cookie Policy.
Powered by Team Bailey Homes & Construction